Thomastown
4/28 Keon ParadePrime Factory Space Ready for Your Next Move!
PRIVATE INSPECTIONS AVAILABLE
OPEN 30 Minutes prior to Auction
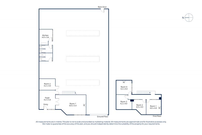
Key Industrial Zone 1 opportunity at 4/28 Keon Parade, Thomastown, offering a warehouse ideal for manufacturing, storage, distribution, or light industrial uses. This versatile warehouse offers a total building area of 536.6m², featuring three-phase power, built-in office facilities, suited for day-to-day business operations or team management.
This property features a high clearance warehouse with container height roller door access, plenty of on-site parking and office space complete with kitchen and bathroom amenities. Located in a thriving industrial precinct, it provides excellent access to major transport routes including the Hume Freeway and M80. Whether you're looking to establish or expand your business, this factory presents a fantastic opportunity in a well-connected location.
PHOTO ID REQUIRED
Due diligence checklist - consumer.vic.gov.au/duediligencechecklist
Privacy...
Read More >>
OPEN 30 Minutes prior to Auction
Key Industrial Zone 1 opportunity at 4/28 Keon Parade, Thomastown, offering a warehouse ideal for manufacturing, storage, distribution, or light industrial uses. This versatile warehouse offers a total building area of 536.6m², featuring three-phase power, built-in office facilities, suited for day-to-day business operations or team management.
This property features a high clearance warehouse with container height roller door access, plenty of on-site parking and office space complete with kitchen and bathroom amenities. Located in a thriving industrial precinct, it provides excellent access to major transport routes including the Hume Freeway and M80. Whether you're looking to establish or expand your business, this factory presents a fantastic opportunity in a well-connected location.
PHOTO ID REQUIRED
Due diligence checklist - consumer.vic.gov.au/duediligencechecklist
Privacy...
Read More >>
PRIVATE INSPECTIONS AVAILABLE
OPEN 30 Minutes prior to Auction
Key Industrial Zone 1 opportunity at 4/28 Keon Parade, Thomastown, offering a warehouse ideal for manufacturing, storage, distribution, or light industrial uses. This versatile warehouse offers a total building area of 536.6m², featuring three-phase power, built-in office facilities, suited for day-to-day business operations or team management.
This property features a high clearance warehouse with container height roller door access, plenty of on-site parking and office space complete with kitchen and bathroom amenities. Located in a thriving industrial precinct, it provides excellent access to major transport routes including the Hume Freeway and M80. Whether you're looking to establish or expand your business, this factory presents a fantastic opportunity in a well-connected location.
PHOTO ID REQUIRED
Due diligence checklist - consumer.vic.gov.au/duediligencechecklist
Privacy Policy and Privacy Collection Notice - rataandco.com.au/privacy-policy
Material Facts - please refer to the contract of sale and vendor statement for material facts.
Land size sourced from land.vic.gov.au. This document has been prepared to assist solely in the marketing of this property.
While all care has been taken to ensure the information provided herein is correct, Harcourts Rata & Co takes no responsibility for any inaccuracies.
Accordingly all interested parties should make their own enquiries to verify the information, including and not limited to land size.
OPEN 30 Minutes prior to Auction
Key Industrial Zone 1 opportunity at 4/28 Keon Parade, Thomastown, offering a warehouse ideal for manufacturing, storage, distribution, or light industrial uses. This versatile warehouse offers a total building area of 536.6m², featuring three-phase power, built-in office facilities, suited for day-to-day business operations or team management.
This property features a high clearance warehouse with container height roller door access, plenty of on-site parking and office space complete with kitchen and bathroom amenities. Located in a thriving industrial precinct, it provides excellent access to major transport routes including the Hume Freeway and M80. Whether you're looking to establish or expand your business, this factory presents a fantastic opportunity in a well-connected location.
PHOTO ID REQUIRED
Due diligence checklist - consumer.vic.gov.au/duediligencechecklist
Privacy Policy and Privacy Collection Notice - rataandco.com.au/privacy-policy
Material Facts - please refer to the contract of sale and vendor statement for material facts.
Land size sourced from land.vic.gov.au. This document has been prepared to assist solely in the marketing of this property.
While all care has been taken to ensure the information provided herein is correct, Harcourts Rata & Co takes no responsibility for any inaccuracies.
Accordingly all interested parties should make their own enquiries to verify the information, including and not limited to land size.
Paul Rametta
Sales Specialist
M: 0449 094 844
P: 03 9465 7766
E: paul.rametta@rataandco.com.au
Tony Lombardi
Executive Director & Auctioneer
M: 0433 223 278
P: 03 9465 7766
E: tony.lombardi@rataandco.com.au
Warning: in_array() expects parameter 2 to be array, null given in /home/harcrata/public_html/wp-content/themes/ap-harcourtsrata/zoorealty/display/widgets/contact_agent.php on line 14
Warning: in_array() expects parameter 2 to be array, null given in /home/harcrata/public_html/wp-content/themes/ap-harcourtsrata/zoorealty/display/widgets/contact_agent.php on line 14
Property information
$1,315,000
Property Type
Industrial
Land Size
471 m2
Enquiry
Free Market Appraisal
- SELLING
- BUYING
- LANDLORDS
- Tenants
- BUSINESS PARTNERS
- RATA & CO
- Careers
- Contact
Floorplan
